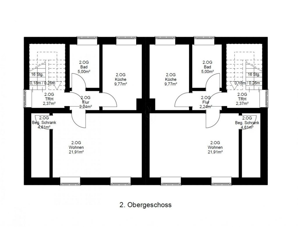
Dieses Wohn- und Geschäftshaus in Kamen bietet vielseitige Nutzungsmöglichkeiten für Eigennutzer, Investoren oder all jene, die Wohnen und Arbeiten unter einem Dach vereinen möchten. Das Objekt verfügt über 6 Wohneinheiten.
Eine Gebäudehälfte ist leerstehend und kann entwickelt werden.
Das Grundstück mit einer Fläche von 341 m² bietet ausreichend Raum und schafft eine angenehme räumliche Situation im direkten Umfeld des Hauses. Im Inneren prägen klassische Dielenböden den Charakter des Gebäudes und verleihen den Räumlichkeiten eine bodenständige, warme Atmosphäre mit echtem Potenzial zur individuellen Gestaltung.
Die einfache Ausstattung des Hauses bietet ideale Voraussetzungen für eine umfassende Modernisierung nach eigenen Vorstellungen. Wer bereit ist, Hand anzulegen oder zu investieren, erhält hier die Möglichkeit, ein vielseitig nutzbares Objekt ganz nach den eigenen Bedürfnissen zu gestalten und aufzuwerten.
Ein solides Haus mit Entwicklungspotenzial in einer etablierten Lage in Kamen – ideal für Käufer mit Weitblick und eigener Gestaltungsidee.










