Dieses reizvolle Wohn-/Geschäftshaus bietet vielfältige Nutzungsmöglichkeiten und befindet sich im Herzen von Soest. Mit einer Gesamtfläche von 818,10 m² präsentiert sich dieses Objekt als eine hervorragende Investitionsgelegenheit.
Das Erdgeschoss ist barrierefrei. Die beiden Obergeschosse und das Dachgeschoss mit den Wohneinheiten können bequem mit einem Aufzug erreicht werden. Somit haben Sie ein zukunftssicheres Objekt, was für alle Altersklassen gut zu erreichen ist.
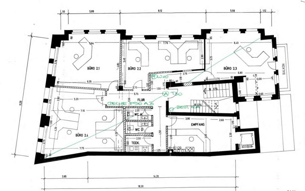
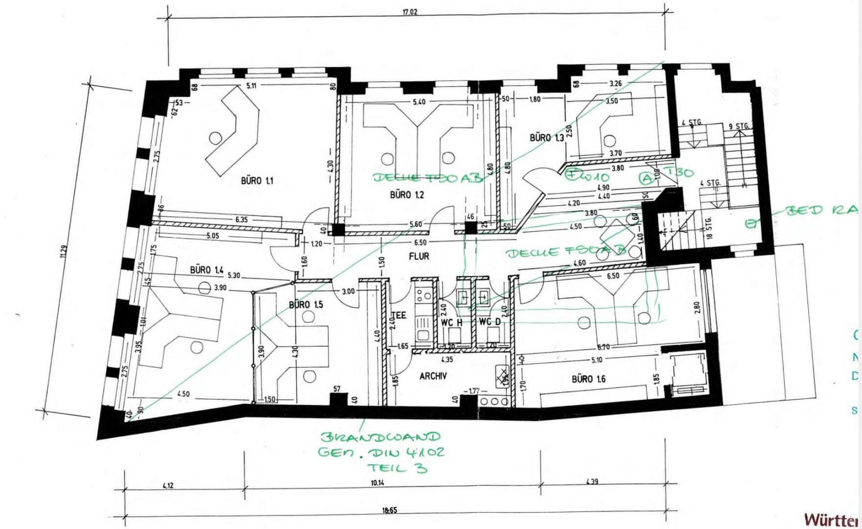
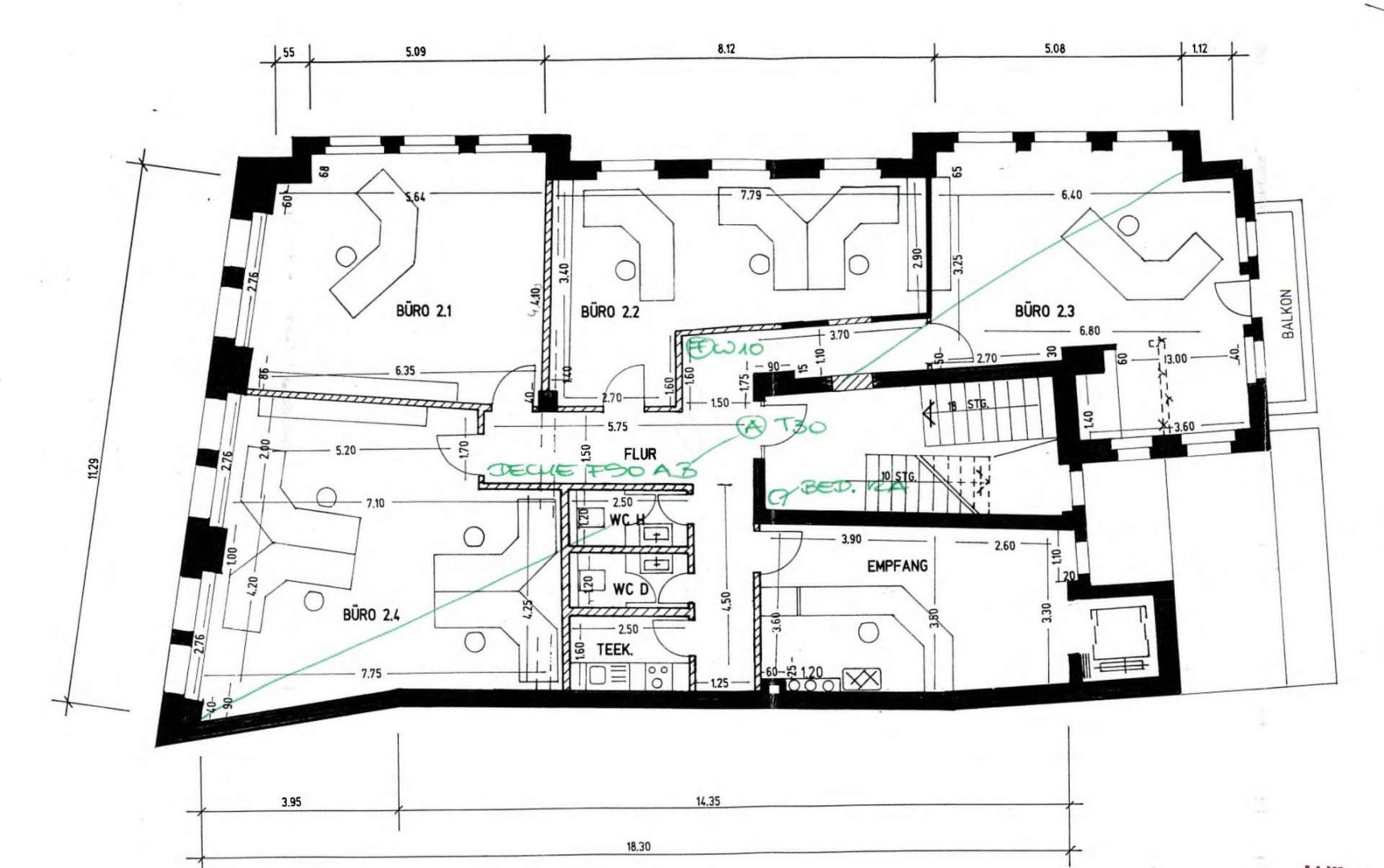
Im Erdgeschoss finden Sie ein langjährig vermietetes großzügiges Ladenlokal mit 203,75 m², ideal für Einzelhandel oder Gastronomie. Das erste Obergeschoss ist ebenfalls langjährig vermietet und umfasst 199,27 m² und eignet sich hervorragend als Praxisräume für verschiedene Berufe. Das zweite Obergeschoss mit 186,37 m² steht derzeit leer und bietet Potential für eine Umwandlung in Wohnräume, abhängig von den örtlichen Bauvorschriften und per individueller Bauvoranfrage zu klären.
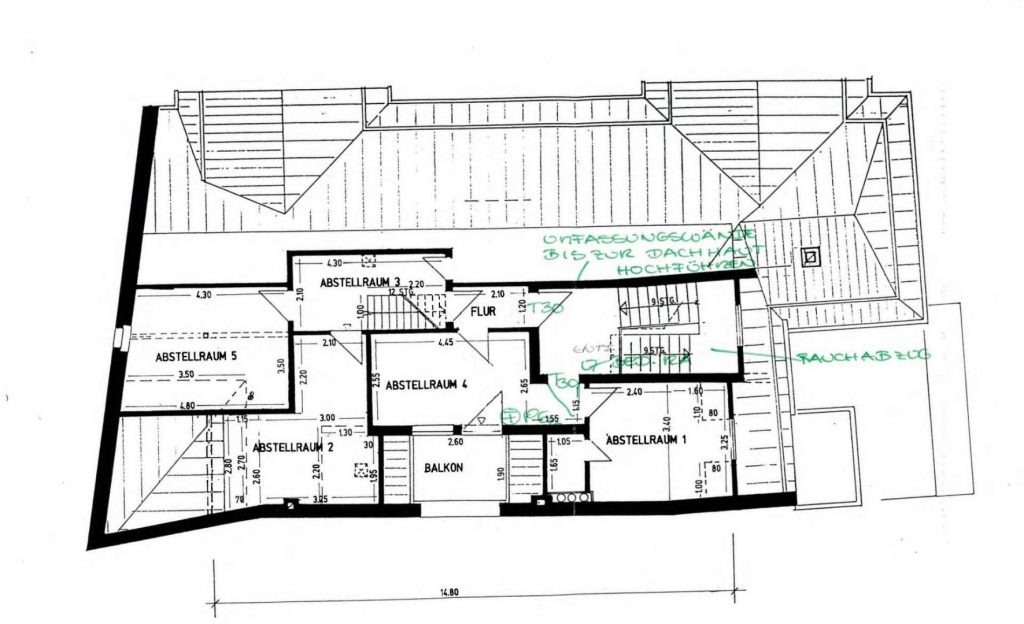
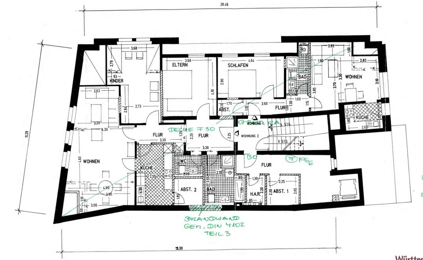
Im Dachgeschoss gibt es zwei Wohnungen: eine kleine, leerstehende Wohnung mit 55,94 m² und eine größere, vermietete Wohnung mit 106,23 m², die eine stetige aber geringe Mieteinnahme sichert.
Das gesamte Gebäude steht auf einem 255 m² großen Grundstück und ist unter Denkmalschutz gestellt, was für einen besonderen Charme und historisches Ambiente sorgt. Dank des Denkmalschutzes haben Sie auch steuerliche Vorteile. Die Zentralheizung, betrieben mit Gas, gewährleistet eine effiziente Beheizung des gesamten Objekts.
Dieses Objekt vereint Wohn- und Geschäftsflächen und bietet sowohl Investoren als auch Selbstnutzern eine Vielzahl an Möglichkeiten. Vereinbaren Sie noch heute einen Besichtigungstermin und entdecken Sie das volle Potenzial dieser einzigartigen Immobilie mit einem hohen Wiedererkennungswert.

