Entdecken Sie Ihr neues Zuhause in diesem charmanten Einfamilienhaus zum Kauf. Mit einer Wohnfläche von 106 m² bietet dieses Haus alles, was Sie für ein komfortables Leben benötigen. Der Bungalow verfügt über insgesamt einen offenen Wohn-, Ess- und Kochbereich mit angrenzender Terrasse sowie 2 Schlafzimmer und 1 Badezimmer. Das großzügige Grundstück von 1.283 m² bietet Ihnen viel Platz für Ihre persönlichen Ideen und Aktivitäten.
Das Haus wurde zuletzt im Jahr 2022 umfassend modernisiert und präsentiert sich in einem sehr gepflegten Zustand. Die Ausstattung ist normal und funktional, ideal für eine Familie oder Paare, die Wert auf ein gemütliches Zuhause legen. Die Böden sind mit einer Kombination aus Fliesen und Vinylboden versehen, was für eine angenehme Wohnatmosphäre sorgt.
Zu den Highlights dieser Immobilie gehören:
- Ein praktischer Außenstellplatz und eine Garage für Ihre Fahrzeuge
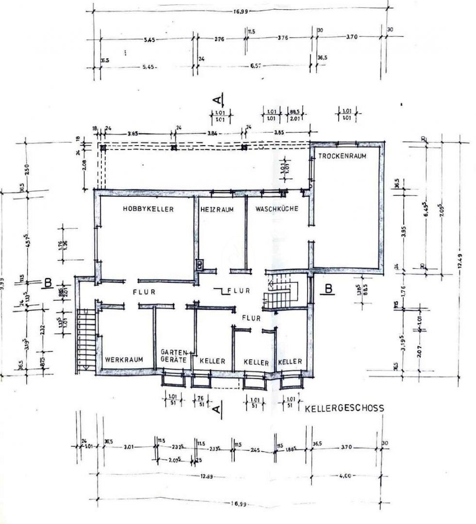
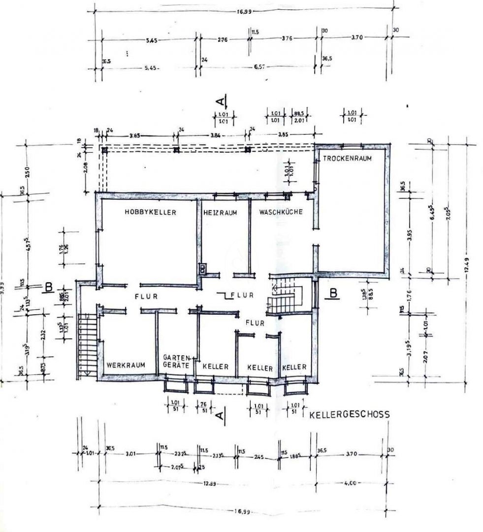
- Ein Keller mit viel Nutzfläche und ein Abstellraum für zusätzlichen Stauraum
- Barrierefreier Zugang, der das Leben für alle Altersgruppen erleichtert
- Ein separates Gäste-WC für mehr Komfort
- Eine moderne Einbauküche, die im Kaufpreis enthalten ist
- Ein gepflegter Garten, in dem Sie entspannen und die Natur genießen können
- Ein Kamin, der für gemütliche Abende mit Familie und Freunden sorgt
- die Wohnfläche beträgt ca. 91 m² und der Balkon anteilig ca. 15,6 m², sodass 106m² Wohnfläche ausgewiesen sind
Die Abteilung II des Grundbuches ist durch ein Recht auf Unterhaltung einer Hochspannungsleitung (220KV) belastet.
Die Immobilie befindet sich in Dortmund, Gemarkung Aplerbecker-Mark und wird mit einer Zentralheizung betrieben, die mit Gas befeuert wird. Hier erwartet Sie ein Zuhause, das sowohl funktional als auch einladend ist. Vereinbaren Sie noch heute einen Besichtigungstermin und lassen Sie sich von diesem Einfamilienhaus verzaubern.


































